Дома под ключ в Липецке
Отзывы из Яндекс Карт
4.9
108 отзывов
Дополнительные услуги 88%
2 154 оценок
Комплектации 89%
1 535 оценок
Планировки 90%
2 484 оценок
Проекты 93%
2 231 оценок
С
Светлана Позднякова01/18/2026 г.
Заказывала домик для родителей 5х6 с террасой, бюджетный вариант. Сделали за 2 недели, все ровно, но на крыше черепица чуть съехала после первых дождей — быстро прислали мастера, подровнял.
С
Виталия Ш.05/13/2025 г.
Мечта сбылась — построили чудесный дом из профилированного бруса с компанией Брус дома, и теперь каждые выходные превращаются в настоящий отпуск; очень понравилось внимательное отношение прораба ко всем нашим пожеланиям и то, как аккуратно и быстро работала бригада.
Отзывы из Google Карт
4.8
65 отзывов
Дополнительные услуги 88%
2 154 оценок
Комплектации 89%
1 535 оценок
Планировки 90%
2 484 оценок
Проекты 93%
2 231 оценок
С
Виола Л.04/15/2026 г.
Очень подробный договор, все этапы, материалы, сроки прописаны. Никаких недопониманий в процессе не возникло. Для меня, как для человека дотошного, это было важно.
С
Емельяна Н.03/09/2025 г.
Спасибо за оперативность! От момента обращения до заселения прошло всего несколько месяцев. Я сама не верила, что так быстро получу готовый тёплый дом, в котором уже можно жить. Всё продумано до мелочей, даже встроенные полки в предбаннике сделали по моей просьбе.
Отзывы из 2гис
4.9
34 отзывов
Дополнительные услуги 88%
2 154 оценок
Комплектации 89%
1 535 оценок
Планировки 90%
2 484 оценок
Проекты 93%
2 231 оценок
С
Артемий Чижов05/01/2026 г.
Каркасный дом 6х6 для круглогодичного проживания — утеплён отлично, в минус двадцать внутри +22 держим без обогревателей. Только розетки в мастерской сделали не там, где я просил, потом переделывали.
С
Емельяна Р.03/05/2026 г.
Ну наконец-то наша баня готова! Заказывала проект 5,5х6 с сауной и террасой, переживала что не впишется в участок, но ребята всё отлично подогнали. Единственное — пришлось самой напомнить про вывоз мусора на третий день, а так довольна.
С
Млада Шарова02/04/2026 г.
Строили баню 6х8 с беседкой и печкой. БрусДома предложили сами привезти материал и собрать на месте — удобно. Но после первого протопа баня дала усадку, и дверь перекосило, приехали поправили через неделю.
С
Николина Осипова06/24/2025 г.
Я безумно счастлива, что наша семья обрела такой потрясающий уголок для отдыха. Каждый раз, приезжая в баню, испытываю чувство благодарности к мастерам, которые вложили в нее душу. Строили летом, паримся всю зиму — никаких нареканий, одна сплошная радость.


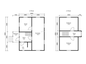
Проект №39 Дом из бруса 6х8

брус камерной сушки
Создайте свой план для этого проекта
и отправьте его нам на расчет в один клик.
Под ключ (с отделкой) 6х8 Профилированный 140х140 мм 1991500 Заказать
Под ключ (с отделкой) 6х8 Профилированный 190х140 мм 2211500 Заказать
Под усадку (без отделки) 6х8 Cруб дома 140х140 мм 1261500 Заказать
Под усадку (без отделки) 6х8 Cруб дома 190х140 мм 1411500 Заказать


Комплектация

Площадь застройки: м2
Длина: 6 м
Ширина: 8 м
Общая площадь: 71.08 м2
Под ключ (с отделкой) Под усадку (без отделки)
Фундамент Свайно-винтовой или ж/б сваи (рассчитываются отдельно).
Гидроизоляция фундамента Рубероид в два слоя.
Основание (обвязка) Из обрезного бруса (100х150 мм. 150х150 мм. 150х200 мм. согласно выбранному сечению бруса). Обработка антисептиком.
Количество рядов основания 2 2
Цокольное перекрытие Обрезной брус камерной сушки 100х150/50х200 мм. с шагом 600 мм. Обработка антисептиком. Обрезной брус естественной влажности 100х150/50х200 мм. с шагом 600 мм. Обработка антисептиком.
Пол черновой Обрезная доска камерной сушки 20х100 мм. Обрезная доска естественной влажности 20х100 мм.
Внешние стены Профилированный брус камерной сушки, сечением 90х140/140х140/190х140 мм. по выбранной комплектации. Два вида профиля: 
1. С двух сторон, прямой со снятой фаской. 2. Снаружи под «блок- хаус», внутри прямой.
Высота сруба: Сруб одноэтажный- 18 венцов
Сруб с мансардой- 18 венцов
Сруб в 1,5 этажа- 18 венцов, далее каркас с внешней отделкой имитацией бруса.
Сруб в 2 этажа- 37 венцов
Профилированный брус естественной влажности, сечением 90х140/140х140/190х140 мм. по выбранной комплектации. Два вида профиля: 
1. С двух сторон, прямой со снятой фаской. 2. Снаружи под «блок- хаус», внутри прямой.
Высота сруба: Сруб одноэтажный- 18 венцов
Сруб с мансардой- 18 венцов
Сруб в 1,5 этажа- 18 венцов, далее каркас с внешней отделкой имитацией бруса.
Сруб в 2 этажа- 37 венцов
Межвенцовый утеплитель Джут (льноджутовое полотно). Джут (льноджутовое полотно).
Перегородки 1-го этажа Профилированный брус камерной сушки, сечением 90х140 мм. Профилированный брус естественной влажности, сечением 90х140 мм.
Перегородки 2-го этажа Каркасные: доска камерной сушки 40х100 мм, обшитые евровагонкой хвойных пород, камерной сушки, толщиной 12,5 мм. сорт «АВ» (дома с мансардой и в 1,5 этажа). Брусовые: профилированный брус камерной сушки, сечением 90х140 мм. (дома двухэтажные). Каркасные: доска естественной влажности 40х100 мм. (дома с мансардой и в 1,5 этажа). Брусовые: профилированный брус естественной влажности, сечением 90х140 мм. (дома двухэтажные).
Сборка сруба Берёзовый нагель. Берёзовый нагель.
Соединение углов сруба «Тёплый угол» (коренной шип). «Тёплый угол» (коренной шип).
Высота от пола до потолка Сруб одноэтажный: 2,4 м. (18 венцов) Сруб с мансардой: 1-ый этаж- 2,4 м. (18 венцов)
2-ой этаж (мансарда)- 2,3 м.
Сруб в полтора и два этажа:
1-ый этаж 2,4 м ±4 см. (18 венцов)
2-ой этаж 2,4 м ±4 см. каркасные аттиковые стены (боковые) высотой 1,5 м. в полутораэтажном доме
2,4 м ±4 см (поднят брусом на 18 венцов) в двухэтажном доме.
Сруб одноэтажный: 2,5 м. (18 венцов) Сруб с мансардой: 1-ый этаж- 2,5 м. (18 венцов)
2-ой этаж (мансарда)- 2,4 м.
Сруб в полтора и два этажа:
1-ый этаж 2,5 м ±4 см. (18 венцов)
2-ой этаж 2,5 м ±4 см. каркасные аттиковые стены (боковые) высотой 1,5 м. в полутораэтажном доме
2,5 м ±4 см (поднят брусом на 18 венцов) в двухэтажном доме.
Утепление (пол, потолок, мансарда) Минеральная вата Knauf 150 мм. Отсутствует.
Пароизоляция (пол, потолок, мансарда) Ондутис R70. Отсутствует.
Пол чистовой Шпунтованная доска камерной сушки толщиной 36 мм. сорт АВ. по рейке 20х40 мм. либо шпунтованная ДСП 16 мм. по разряженной обрешётке из обрезной доски камерной сушки 20х100 мм. Отсутствует.
Потолки Евровагонка камерной сушки толщиной 12,5 мм. сорт АВ. Отсутствует.
Окна Деревянные, двойного остекления. Отсутствуют.
Двери Входная- металлическая, утеплённая (Россия). Межкомнатные- филёнчатые. Отсутствуют.
Наличники на окна и двери Наличник деревянный, строганый, камерной сушки 70-90 мм. Отсутствует.
Шиповка оконных и дверных проёмов (ройки) Да. Отсутствует.
Лестница (при наличии второго этажа) Деревянная, одно или двухмаршевая. Перила- заводские резные, балясины- заводские точеные, устанавливаются стартовые точёные столбы. Ступени 40х200 мм. Тетива лестницы- 90х140 мм. Отсутствует.
Крыша Двускатная, ломаная или вальмовая в соответствии с проектом. Двускатная, ломаная или вальмовая в соответствии с проектом.
Стропильная система Выполнена из обрезной доски камерной сушки 40х150 мм. Шаг установки стропильных ног 600 мм. Выполнена из обрезной доски естественной влажности 40х150 мм. Шаг установки стропильных ног 600 мм.
Обрешётка Выполняется из обрезной доски камерной сушки толщиной 20-22 мм. Шаг крепления обрешетки 300 мм. Контробрешётка выполняется из бруска камерной сушки 40х50 мм. Крепится по стропильным ногам (вентиляционный зазор). Выполняется из обрезной доски естественной влажности толщиной 20-22 мм. Шаг крепления обрешетки 300 мм. Контробрешётка выполняется из бруска естественной влажности 40х50 мм. Крепится по стропильным ногам (вентиляционный зазор).
Подкровельная мембрана Ондутис А100 Ондутис А100
Кровельное покрытие (на выбор) Ондулин, Черепица Ондулин. Ондулин, Черепица Ондулин.
Фронтоны (при наличии) Каркас из обрезной доски камерной сушки 40х150 мм. Обшиваются вагонкой камерной сушки толщиной 16 мм. сорт АВ по контррейке 20х40 мм. (вентиляционный зазор). Влаго-ветрозащита Ондутис А100. Монтаж вентиляционных решёток. Каркас из обрезной доски естественной влажности 40х150 мм. Обшиваются вагонкой камерной сушки толщиной 16 мм. сорт АВ по контррейке 20х40 мм. (вентиляционный зазор). Влаго-ветрозащита Ондутис А100. Монтаж вентиляционных решёток.
Свесы крыши Ширина 400 мм. Подшиваются вагонкой камерной сушки, сорт АВ. Ширина 400 мм. Подшиваются вагонкой камерной сушки, сорт АВ.
Терраса/балкон (при наличии) Устанавливаются опорные столбы из строганного бруса камерной сушки 140х140 мм. с компенсационными болтами под усадку. Устанавливаются опорные столбы из строганного бруса естественной влажности 140х140 мм. с компенсационными болтами под усадку.
Отделка потолка террасы/балкона Евровагонка камерной сушки толщиной 12,5 мм. сорт АВ. Отсутствует.
Пол террасы/балкона Шпунтованная доска камерной сушки толщиной 36 мм. сорт АВ. Отсутствует.
Ограждение террасы/балкона Перила- строганая доска. Балясины- точеные, фигурные. Либо ограждение в скандинавском стиле. Устанавливаются ступени у входа. Отсутствует.
Допуск на геометрические параметры сруба Составляет +/- 50 мм по длине с каждой стороны. Составляет +/- 50 мм по длине с каждой стороны.
Допускается стыковка бруса, вагонки и половой доски По всему периметру стен дома (если ширина и длина дома более 6,0 метров). Вагонки и доски пола в каждой отдельной комнате. По всему периметру стен дома (если ширина и длина дома более 6,0 метров).
Допуски по брусу, доске +/- 5 мм. +/- 5 мм.
В стоимость включена Доставка комплекта материала в радиусе 500 км. от г. Пестова Новгородской области и сборка дома на вашем участке. Доставка комплекта материала в радиусе 500 км. от г. Пестова Новгородской области и сборка дома на вашем участке.
Гарантия 5 лет. 2 года.
Бытовка строительная 2,0х3,0 м. каркасно-щитовая. Стоимость 23000 руб. Остаётся на участке Заказчика. Стоимость 23000 руб. Остаётся на участке Заказчика.
Туалет 1,0х1,0 м. каркасно-щитовой. Стоимость 12000 руб. Остаётся на участке Заказчика. Стоимость 12000 руб. Остаётся на участке Заказчика.
Генератор Стоимость аренды на весь срок строительства 10000 руб. ГСМ за счёт Заказчика. Стоимость аренды на весь срок строительства 10000 руб. ГСМ за счёт Заказчика.

Постройка деревянных домов выполняется в 2-х вариантах: под усадку, когда дом будет отстаиваться некоторое время и полностью под ключ.

В зимнее время года лучше всего строить из зимнего леса, в летний период - из дерева камерной сушки.

Оптимальными для сада или дачи считают бюджетные дома на винтовых сваях, в нашем каталоге находятся одноэтажные и полуторатажные варианты.

Если вы собираетесь проживать постоянно, советуем очень надежные и теплые двухэтажные и одноэтажные коттеджи и дома на плитном и ленточном фундаменте.

Существует несколько размеров профбруса: 190х140 мм и 140х140 мм. Сооружения из вертикального бруса возводятся с использованием бруса 140х190 мм.

Дополнительные услуги


Проект 39 дома из бруса . Общая площадь полутораэтажного здания составляет 71.08 кв.м., размер – 6х8 м..

В постройке дома используются только качественные экологически чистые материалы: брус (обвязка, лаги), профилированный брус (стены, перегородки), полуобрезная доска 20-25 см (черновой пол, обрешетка), обрезная доска (перекрытие, стропильная конструкция), шпунтованная доска 27 см (чистовой пол), вагонка (подшив потолка), джутовое льнополотно (между брусом), утеплитель URSA/ISOVER 50 мм, гидроизоляционная пленка ондутис R70 (полы, перекрытие).

Крыша дома двускатная покрыта ондулином красного, коричневого или зеленого цвета.

Данный проект может быть реализован компанией %VGORODE% как дом под ключ с отделкой, так и дом под усадку без отделки. При строительстве на заказ некоторые параметры (толщина бруса, цвет крыши и т.д.) оговариваются индивидуально.


Заказать или задать вопрос



Заказать или задать вопрос

Заказать звонок